MYTRYCHKO SYMA
ГОЛОВНААРХІТЕКТУРАДИЗАЙН ІНТЕР'ЄРУПОСЛУГИКОМАНДАКОНТАКТИ
EN|UA

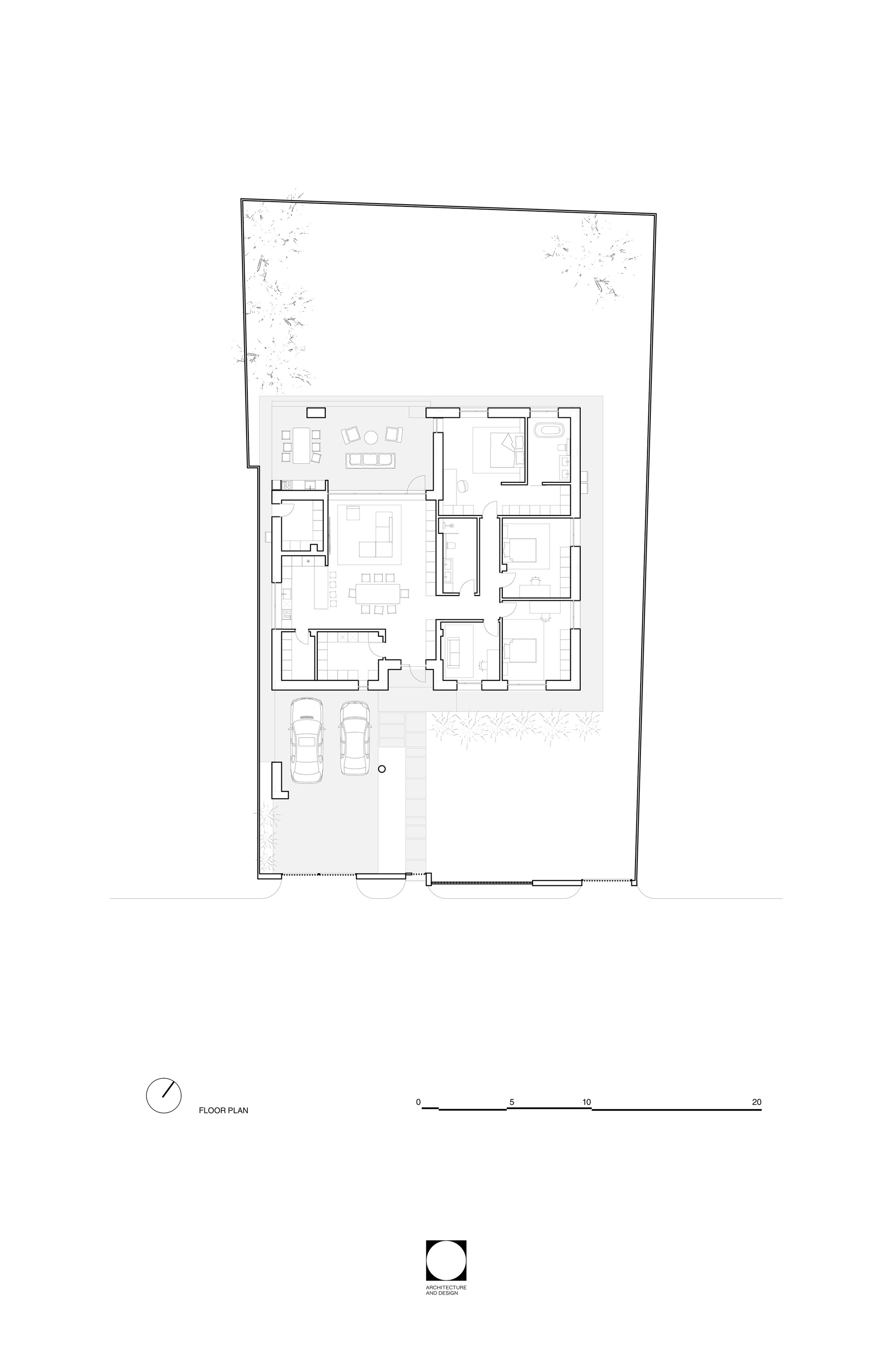
#PRIVATE HOUSE

KH H1

  • Архітектори: РОБЕРТ МИТРИЧКО, ГАЛИНА СИМА, СТАНІСЛАВ КОГУЧ, АННА ОСАДЧА, КАТЕРИНА ДИЧКА
  • Рік: 2023
  • Площа: 295 КВ. М.
  • Локація: ХУСТ, УКРАЇНА

Зв'язатися з нами

  • Instagram
  • Facebook
  • Behance